www.SOFTconsult.TV  | www.SOFTconsult.SK  | www.spiritstudent.cz  | www.AEC-DATA.com  | www.AEC-creative.com  | www.DOMKY.cz generováno: 06.11.2025, 2:15 
SOFTreport
prohledávání serveru: 
 
 krátké zprávy  | články  | tipy a triky  | školství  | burza práce  | download  | galerie projektů
 hlavní stránka  > články  > Tipy a triky > ArCon / SimLab
 
Tipy a triky
 · SPIRIT
 · ArCon / SimLab
 · PowerProject
 · FM-DATA
 · AEC-DATA
Zasílání informací ze SOFTreportu.
Zadejte svuj e-mail:



AEC-DATA
o serveru

Program support:
Pomocí programu Support se připojíme na váš počítač a vyřešíme on-line vaše problémy. Po spuštění programu zašlete ID které program vypíše na e-mail support@softconsult.com
Program support:
Pomocí programu Support se poipojíme na váš poeítae a vyoeším on-line vaše problémy. Po spuštiní programu zašlete ID které program vypíše na e-mail support@softconsult.com
06.12.2012Ing. Vladislav Pavlík
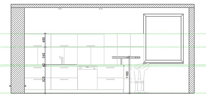
ArCon – Řezy v ArConu verze pro tisk
 
V ArConu můžete vytvářet vodorovné, svislé nebo šikmé řezy. Řezy vytváříte v kontrukčním režimu ArConu. Pro vytvoření řezu proveďte následující postup:

1. Klikněte na svislé ikonové liště na ikonu Definice řezu.
2. Ve vedlejší ikonové liště vyberte vyberte typ řezu (vodorovný, svislý nebo šikmý řez).
3. Nyní definujte v projektu čáru řezu. Je důležité definovat čáru řezu správným směrem. Černé šipky na koncích čáry řezu znázorňují směr pohledu.



4. Otevře se dialogové okno Řez.



5. Podle toho k jakému účelu generujete řez nastavte zde vhodné parametry a potvrďte tlačítkem OK. Řez se vygeneruje

A) Řez pro definici pohledu do malé místnost (např. Koupelna)
Pokud definujete řez za účelem odříznutí stěny, abyste se mohli podívat do malé místnosti (typicky koupelna), potom nemusíte nic nastavovat. Pouze zavřete okno tlačítkem OK.

Pro zobrazení pohledu s řezem, přepněte do design režimu ArConu a vyberte ikonu Perspektiva s řezem (viz obrázky níže).





B) Řez pro technickou dokumentaci
Pokud definujete řez jako technickou dokumentaci (pohled) vašeho projektu, potom nastavte v dialogu tyto volby:
- Aktivujte volbu s objekty, pokud chcete v řezu vidět zařízení. Pokud vytváříte návrh interiéru (kuchyň, koupelnu, skříň,...), vždy aktivujte volbu s objekty.
- Aktivujte měřítko podle projektu, pokud chcete v řezu kótovat.
- Aktivujte volbu v sekci Okno řezu, podle toho, jak chcete řez zobrazit. Více informací naleznete níže.
Zavřete okno tlačítkem OK.



Okno řezu
Řez může být zobrazen na výkrese několika způsoby:
Skryté – pokud aktivujete tuto volbu, řez nebude zobrazen. Bude zobrazena pouze čára řezu. Chcete-li změnit zobrazení řezu, klikněte 2x na čáru řezu v projektu a změňte způsob zobrazení.



Jako obdélník ve výkrese – tato volba umožňuje na jednom výkrese zobrazit půdorys a také řez. Řez je zobrazen v samostatném okně, které můžete libovolně posunout nebo rozměrově upravovat. Abyste mohli provádět tyto operace, musí být aktivní také volba přes výkres.
Chcete-li upravit velikost okna řezu, klikněte dovnitř okna řezu a tažením zvýrazněných rohů okna změňte velikost.
Chcete-li posunout okno řezu, klikněte dovnitř okna řezu a tažením myši posuňte okno řezu.
Chcete-li upravit pozici řezu uvnitř okna řezu, vyberte funkci Výběr elementů (ikona šipka) a umístěte kurzor myši na hranu okna řezu. Nyní tažením myši přizpůsobte pozici okna řezu.



Samostatné okno - pokud aktivujete tuto volbu, řez bude zobrazen samostatně na celý výkres (přes půdorys).



Kótování v řezu
Ve vygenerovaném řezu můžete vidět černé a šedé čáry. Černé čáry jsou čáry v rovině řezu. Na tyto se lze uchopovat. Šedé čáry jsou čáry pozadí. Nelze se na ně uchopovat. Chcete-li kótovat šedé čáry a znáte rozměry, můžete využít pomocné čáry. Na vložené pomocné čáry se můžete uchopovat. Před vložením pomocných čar zkontrolujte správné měřítko řezu (nejlépe podle projektu).
Pro doplnění řezu můžete použít kóty, popisy a pomocné čáry.



Zobrazení/skrytí řezu
všechny řezy můžete zobrazit nebi skrýt pomocí ikny na vodorovné liště Řez zobrazit/skrýt.



Podrobněnší informace k vytváření řezů naleznete v dokumentaci nebo nápovědě programu.

 
 krátké zprávy  | články  | tipy a triky  | školství  | burza  | download  | galerie projektu

Vydává SOFTconsult, spol. s r. o.
e-mail:webmaster@softconsult.com
© 2001-2025 Všechna práva vyhrazena.